トップページ > 徳島市佐古二番町 

販売物件情報

  • お気に入りリストを見る
  • 物件情報を印刷する
  • プリンタの設定で「背景を印刷する」と設定しないと「背景画像」が印刷されないことがあります。印刷の際には、必ず「背景を印刷する」設定にしてください。

新築一戸建て

徳島市佐古二番町 

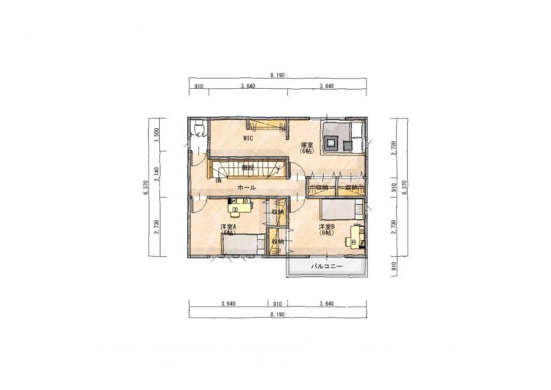
画像

この物件のお支払い例

頭金0円/ボーナス払い0円

物件価格3,680万円

月々の支払い93,472

※上記支払例の借入条件:金利0.375%、借入総額3,680万円、借入期間35年

所在地・交通

所在地 徳島市佐古二番町 
最寄駅 JR髙徳線 佐古駅 徒歩分数 3分
最寄バス停 佐古1番町 徒歩分数 3分
小学校校区 徳島市立佐古小学校 中学校校区 徳島市立城西中学校

※学校区は住所から自動判定したものであり、保証できる情報ではございません。正確な学校区はお問い合わせ下さい。

お問い合わせフォームはこちら

「人型アイコン」を地図上にドラッグすることで『Google Street View』に切り替わります。

※地図上の「対象地」は「日本、〒770-0022 徳島県徳島市佐古二番町5−4」の場所を指しています。実際の場所ではない場合がございます。詳しくはお問い合わせください。

お問い合わせフォームはこちら

物件概要

価格 3,680万円 種目 新築一戸建住宅
間取り 3SLDK 間取り内訳
土地面積 150.5㎡ 私道面積
建物面積 102.68㎡ 建物構造規模 木造 2階建
築年月(竣工月) 2026年02月 駐車場  
建ぺい率/容積率 80%/400% 都市計画 市街化区域
接道状況 南7.45m 公道 接面11.53m  東4.10m 公道 接面13.39m   二方道路(除角地)
地目 宅地
土地権利 所有権 地勢 平坦
用途地域 商業地域
現況 未完成 取引態様 代理
建築確認番号 第544号

取引条件等

引渡し 相談

その他

設備 温水洗浄便座、トイレ2ヶ所、システムキッチン、IHクッキングヒーター、食器洗浄乾燥機、ウォークインクローゼット、床下収納、洗髪洗面化粧台、照明器具、電気、上水道、下水道、側溝、複層ガラス、モニタ付インターホン、ディンプルキー、庭、駐車場3台分
特徴 日当り良好、オール電化、24時間換気システム
諸条件・相談
情報登録日 2025年10月26日 情報更新予定日 2026年3月23日
物件番号 14809
この物件を見た人の多くは下記の物件も見ています!
徳島市北田宮3丁目  [3,080万円] [3SLDK]
徳島市北田宮3丁目  [3,680万円] [4SLDK]

ページの先頭へ

Copyright (C) 徳島不動産ナビ, All Rights Reserved.